Terrain à Puig Rom

Parcelle en vente á Roses, Girona (Puig Rom)

Roses (Puig Rom)

Ref. 1018
vente: 300.000 
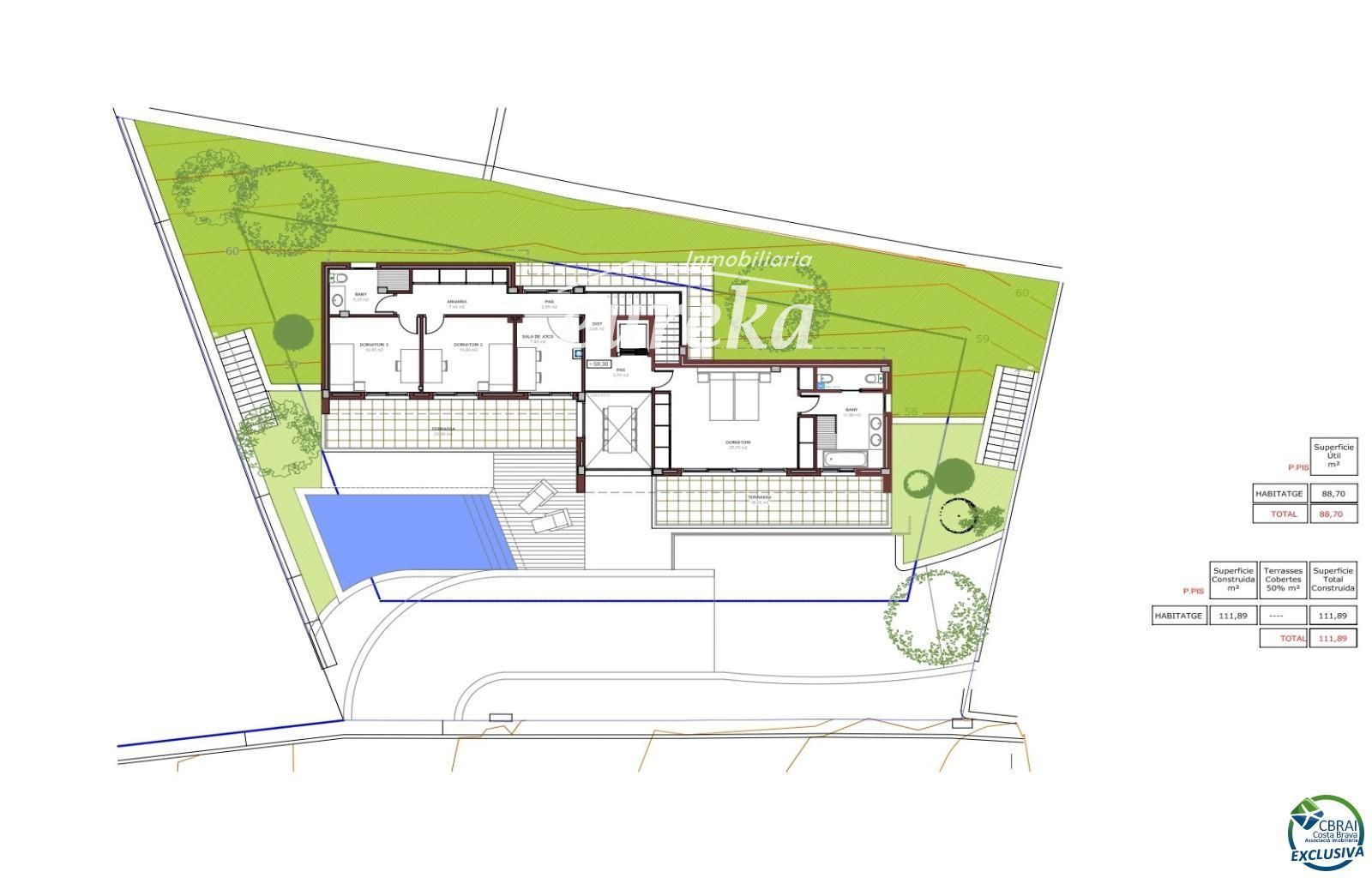
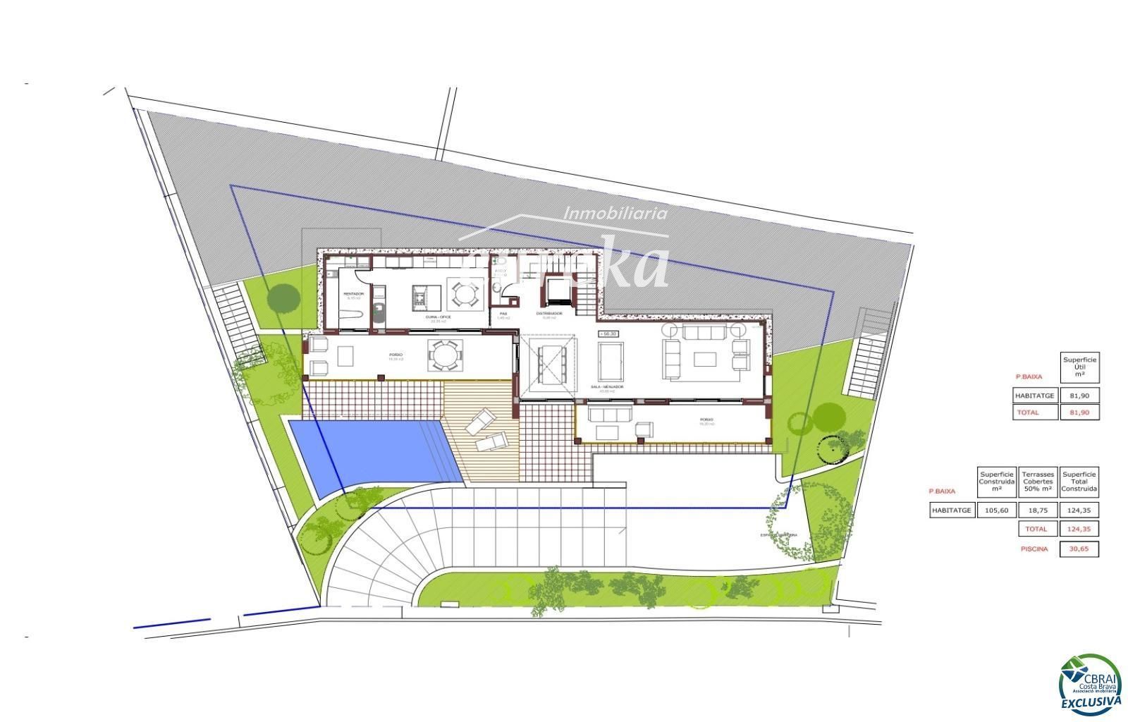
Terrain de 652 m2. Il y a des plans visés et permis de construction.

Indice de location

Terrain 652 m2
constructible 175,50 m2
Répercussion m² constructible 1.709,40 €/m²
L'adresse de la propriété est approximative.
Galerie

Propriétés similaires:

 
310 000 €
   0  0
 
Parcelle en vente á Pau.
300 000 €
     0
Demander des informations

Si vous souhaitez plus d'informations sur cette propriété, veuillez remplir le formulaire: