PORT MOXÓ Charmante 2-Zimmer-Wohnung mit Kanalblick, Solarium und privatem Außenstellplatz

Wohnung zu verkaufen in Empuriabrava, Girona (Empuriabrava-Port Moxo)

Empuriabrava (Empuriabrava-Port Moxo)

Ref. 2343 73 m2 29 m2 2 1 1 2
verkaufen: 275.000 

Helle Wohnung in Port Moxó mit Kanalblick und nur 300 Meter vom Strand entfernt


In einer der charmantesten Gegenden von Empuriabrava, bekannt für ihre malerischen Kanäle, liegt dieses gemütliche Apartment in Port Moxó – ideal sowohl als Hauptwohnsitz als auch für Urlaube am Meer.


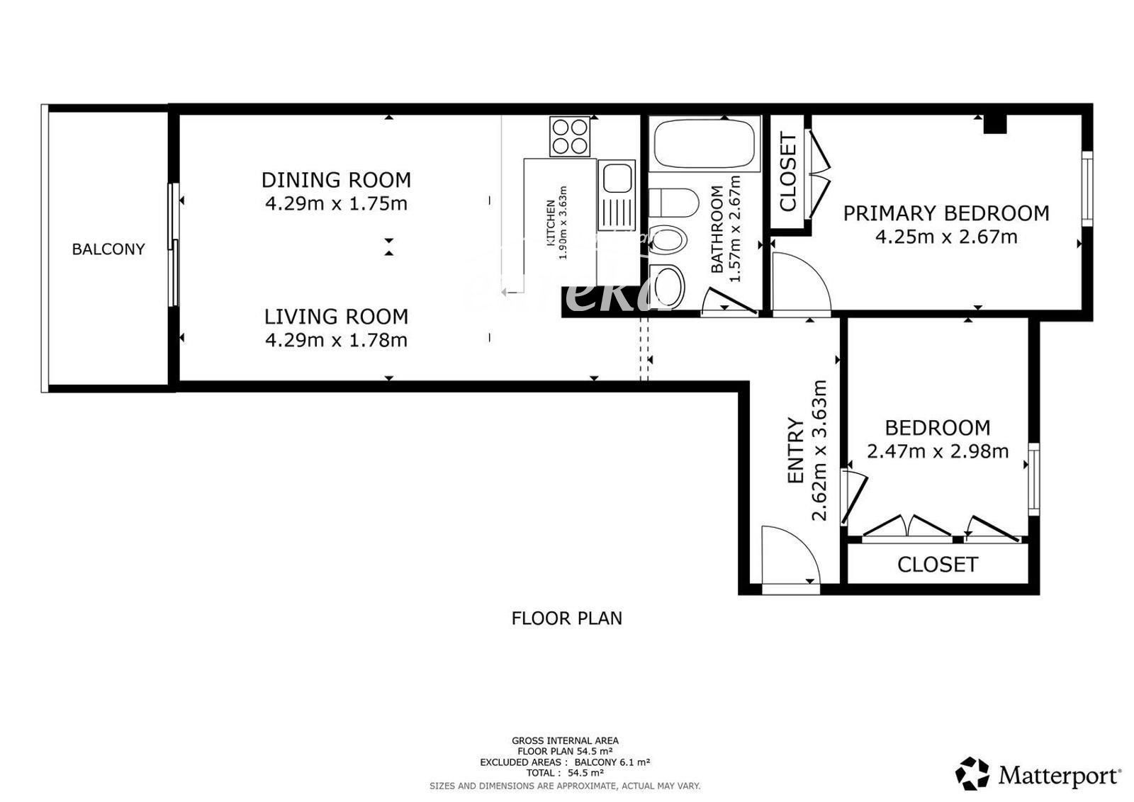
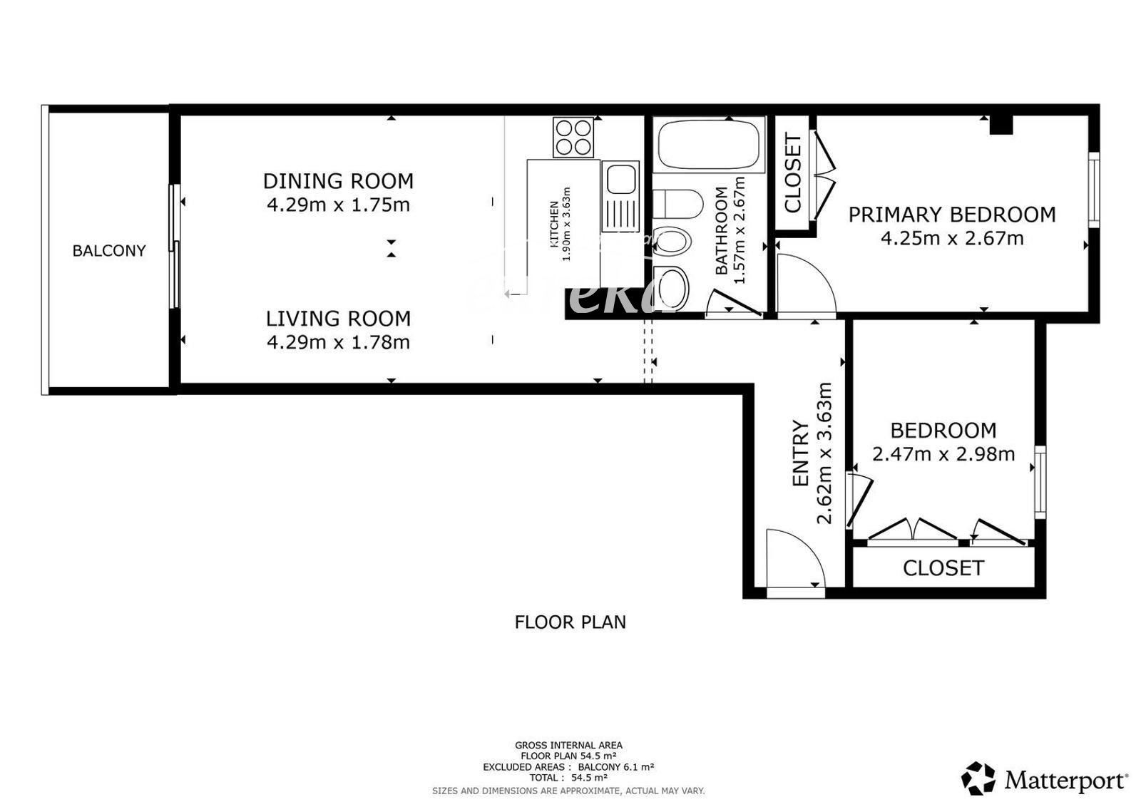
Die Wohnung verfügt über ein großes und helles Wohn-Esszimmer mit direktem Zugang zu einer Terrasse mit wunderschönem Blick auf den Kanal. Die offene Küche ermöglicht eine perfekte Integration in den Wohnbereich. Es gibt zwei Schlafzimmer mit Einbauschränken, ein komplettes Badezimmer mit Badewanne und schließlich eine private Dachterrasse mit Grill von 23,30 m² im oberen Bereich der Wohnung. Dank der Südwest-Ausrichtung erhält die Wohnung den ganzen Tag über reichlich natürliches Licht.


Ausgestattet mit reversibler Klimaanlage im Wohnzimmer und verkauft mit einem privaten Außenstellplatz, der im Preis inbegriffen ist.


Nur 300 Meter vom Strand von Empuriabrava entfernt bietet diese Immobilie eine hervorragende Lage in Meeresnähe und in der Nähe aller Annehmlichkeiten.


Mit 23 km schiffbarer Kanäle gilt die Marina von Empuriabrava als die größte Wohnmarina Europas. Ihre privilegierte Lage und ihr angenehmes Klima machen sie zu einem beliebten Ziel für Fallschirmspringen und Wassersport.


Verpassen Sie nicht diese einzigartige Gelegenheit, im Herzen der Costa Brava zu leben oder zu investieren!

Mietindex

Konstruktionsfläche 73 m2
Nutzfläche 54 m2
Preis/m² 3.767
Terrasse 29 m2
Schlafzimmer 2
Badezimmer 1
Möbliert
Möblierte Küche
Garagen 1
Höhe/Etage 2
Außenschreinerei Holz
Innentischlerei Holz
Orientierung Norte
Zustand
Klimaanlage
Energieeffizienzklasse (E) ZEIGEN
Elektrizität
Wasser
Die Lage der Immobilie ist eine ungefähre Angabe.

Ähnliche angebote:

 
Wohnung zu verkaufen in Roses, mit 58 m2, 2 schlafzimmer und 1 badezimmer, Garage, Abstellraum und Möbliert.
320.000 €
 58 m2  2  1
 
Wohnung zu verkaufen in Roses, mit 62 m2, 3 schlafzimmer und 1 badezimmer, Swimming Pool, Garage, Aufzug, Möbliert und Klimaanlage.
225.000 €
 62 m2  3  1
Informationen anfordern

Wenn Sie weitere Informationen zu dieser Immobilie wünschen, füllen Sie bitte das folgende Formular aus: