SYLVIA 2-Zimmer-Apartment zur Renovierung mit beeindruckendem Meerblick

Wohnung zu verkaufen in Empuriabrava, Girona (Empuriabrava-Muga)

Empuriabrava (Empuriabrava-Muga)

Ref. 2056 79 m2 9 m2 2 1 14
verkaufen: 182.500 
vorheriger Verkauf: 185.000 €
Certificado Energético: J826D85JC

Apartment mit Meerblick und Großer Terrasse in Empuriabrava.

Entdecke dieses großzügige 79 m² große Apartment zur Renovierung, gelegen im 14. Stock mit einer spektakulären Terrasse und beeindruckendem Meerblick. Dank der Ostausrichtung genießt du jeden Morgen die ersten Sonnenstrahlen.

Nur wenige Meter vom Strand entfernt und in einer zentralen, gut angebundenen Lage, hast du schnellen Zugang zu allen Dienstleistungen, Geschäften und Restaurants der Umgebung.

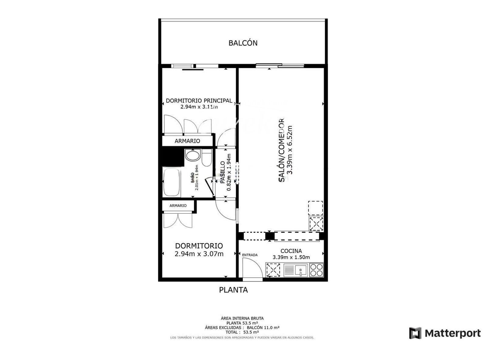
Die Wohnung bietet:

  1. Ein helles Wohn-Esszimmer mit offener Küche und direktem Zugang zur großen Terrasse, ideal zum Entspannen mit Blick auf den weitläufigen und schönen Strand von Empuriabrava.
  2. Zwei Doppelschlafzimmer mit Einbauschränken, perfekt zum Entspannen und Verstauen.
  3. Ein voll ausgestattetes Badezimmer, funktional und komfortabel.

Eine ausgezeichnete Gelegenheit, dein Zuhause am Meer nach deinen Vorstellungen zu gestalten. Lass dir diese einmalige Chance nicht entgehen!

Mietindex

Baujahr 1981
Konstruktionsfläche 79 m2
Preis/m² 2.310
Terrasse 9 m2
Schlafzimmer 2
Badezimmer 1
Möblierte Küche
Heizung
Höhe/Etage 14
Außenschreinerei Aluminium
Innentischlerei Holz
Orientierung Sudeste
Am Strand
Zustand Guter Zustand
Bodenbewertung
Aufzug
Energieeffizienzklasse (E) ZEIGEN
Elektrizität
Wasser
Die Lage der Immobilie ist eine ungefähre Angabe.

Ähnliche angebote:

 
Wohnung zu verkaufen in Roses, mit 41 m2, 1 schlafzimmer und 1 badezimmer, Garage, Aufzug, Möbliert und Klimaanlage.
157.000 €
 41 m2  1  1
 
Wohnung zu verkaufen in Roses, mit 50 m2, 2 schlafzimmer und 1 badezimmer, Swimming Pool, Garage und Möbliert.
198.000 €
 50 m2  2  1
Informationen anfordern

Wenn Sie weitere Informationen zu dieser Immobilie wünschen, füllen Sie bitte das folgende Formular aus: